Prezentare generala
- Updated On:
- ianuarie 27, 2026
- ID:74414
- 2 Rooms
- 54.0 m2
- Year Built:2025
- Comision 0%
Descriere
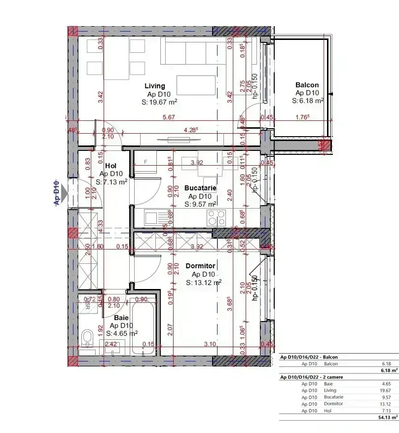
Situat in proximitatea metroului si a zonelor de market din estul capitalei , va oferim apartament de 2 camere clasic cu bucatarie mare cu o suprafata TOTALA 54.13 mp + balcon 6.18 mp.
Pret in functie de avans:
– 98.004 euro tva inclus la avans de 99 %
– 101.019 euro tva inclus la avans de 50 %
– 108.558 euro tva inclus la avans de 15 %
– Comision 0
– Consultanta gratuita obtinere credit –broker
Despre proiect si vizionari la numarul – 0750422705.
Parcare , preturile difera in functie de locul ales exterior sau interior, acestea sunt intre 8.500 euro si 12.500 euro tva inclus.
Detalii tehnice:
– izolatie fonica intre apartamente
– termostat ambient în fiecare cameră
– sistem de incalzire in pardoseala marca INNOFLOOR cu sistemul de control INNOSMART permite reglarea temperaturii in fiecare camera individual.
– tamplaria Salamander cu geam tripan Buevolution 4S si feronerie Roto Premium NX
– bandă adezivă impermeabilă de etanșare a ferestrelor
– premontaj pentru aer condiționat ,cu sistem dublu split la dormitoare
-vas WC suspendat




















