Prezentare generala
- Updated On:
- ianuarie 27, 2026
- ID:79819
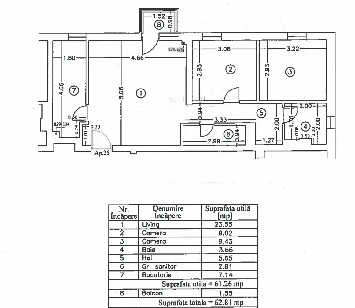
- 3 Rooms
- 63.0 m2
- Year Built:2017
- Comision 0%
Descriere
Comision 0%
Apartament cu 3 camere la 5 minute de statia de metoru N Teclu si 10 min fata de statia de metrou 1 Decembrie 1918. Apartamentul se preda mobilat si utilat ca in poze.
Apartamentul are centrala proprie, aer conditionat in living, masina de spalat rufe si uscator, masina spalat vase iar la baia mare are geam.
Inclus in pretul de 128.000 euro se vinde si boxa.
Parcarea este la liber in incinta complexului rezidential pentru proprietari.
Vizionare online cu ajutorul Turului Virtual 360 din anunt.
Oferim comision 0 si consultanta gratuita pentru obtinere credit in colaborare cu broker bancar.
Price: 128,000 €
Property Size: 63.0 m2
Rooms: 3
Bathrooms: 2
Year Built: 2017
Available from: 2024-09-30 11:16:19
Destinatie
Rezidential
Detalii zona
Asfaltate
Iluminat stradal
Mijloace de transport in comun
Facilitati
Apometre
Boxa la subsol
Lift
Mobilata
Utilata
Videointerfon
Finisaje
Celulare
Exterior
Faianta
Gresie
Parchet
PVC
Renovat
Vopsea lavabila
Servicii
Administrare
Supraveghere video
Utilitati
Aer conditionat
Apa
Calorifere
Canalizare
CATV
Curent
Fibra optica
Telefon
Wireless
















