Prezentare generala
- Updated On:
- noiembrie 7, 2024
- ID:77870
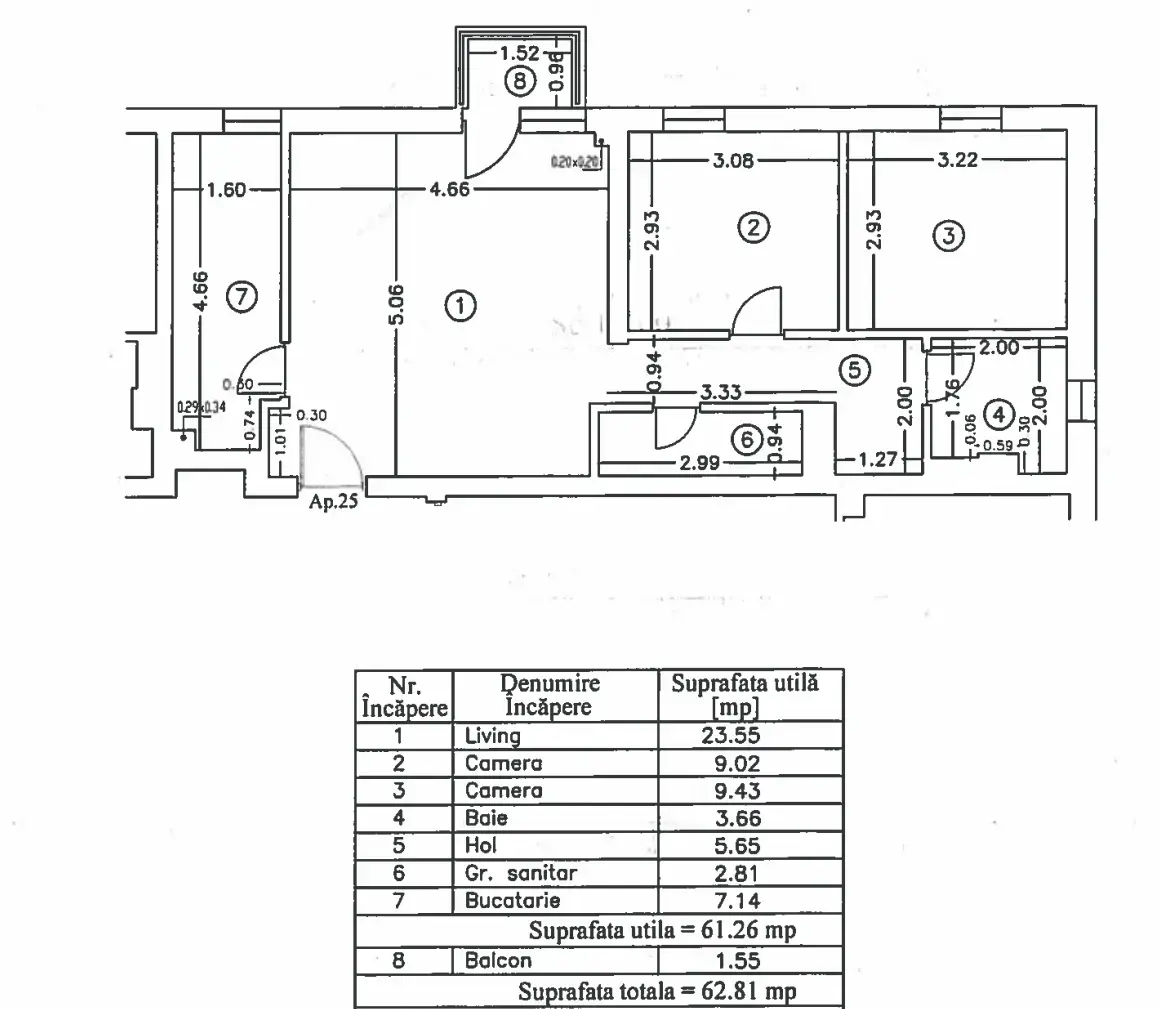
- 3 Rooms
- 63.0 m2
- Year Built:2017
- Comision 0%
Descriere
Vindem apartament 3 camere in complex securizat , cu parcare la liber si boxa incluse.
Apartamentul este mobilat si utilat ca in poze , are aer conditionat in living , centrala termica pe gaz , geam la baie .
Oferim comision 0 si consultanta gratuita pentru obtinere credit in colaborare cu broker cu experienta .
Detalii si vizionari la numarul – 0750422705 , inclusiv whatsapp.
Price: 128,000 €
Property Size: 63.0 m2
Rooms: 3
Bathrooms: 2
Year Built: 2017
Available from: 2024-09-10 14:40:16
Destinatie
Rezidential
Detalii zona
Asfaltate
Iluminat stradal
Mijloace de transport in comun
Facilitati
Apometre
Boxa la subsol
Lift
Mobilata
Utilata
Videointerfon
Finisaje
Celulare
Exterior
Faianta
Gresie
Parchet
PVC
Renovat
Vopsea lavabila
Servicii
Administrare
Supraveghere video
Utilitati
Aer conditionat
Apa
Calorifere
Canalizare
CATV
Curent
Fibra optica
Telefon
Wireless















