Prezentare generala
- Updated On:
- ianuarie 27, 2026
- ID:106181
- 3 Rooms
- 82.0 m2
- Year Built:2025
- Comision 0%
Descriere
Vanzarea se face prin cesiune
Pret cedare – 177.670 euro tva inclus
( 31.325 euro + 4721.85 euro tva si diferenta de plata la dezvoltator 141.624.45 euro )
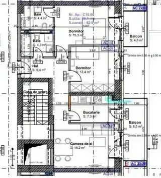
Se vinde un apartament de 3 camere in Estoria City faza doi – 82.90 mp cu 2 balcoane incluse -pozitie Est.
Termen de predare – 2025
Apartamentul are varianta de finisaje de Lux.
Apartamentul 3 Camere situat la etajul 10, compus din 3 (trei) camere de locuit și dependințe, respectiv, cameră de zi, două dormitoare, bucătărie, două băi şi hol, având suprafața utilă de aproximativ 68,90 mp + suprafață logie/terasa/balcon de aproximativ 13,30 mp, deci o suprafață totală (inclusiv logie/terasa/balcon) de aproximativ 82,20 mp
Pentru mai multe detalii sau programare vizionare : 0734172472 Victor 🙂



















