Prezentare generala
- Updated On:
- noiembrie 10, 2025
- ID:99749
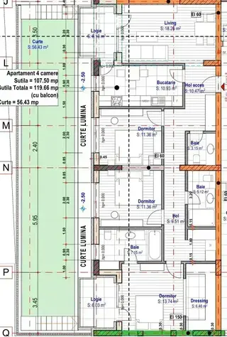
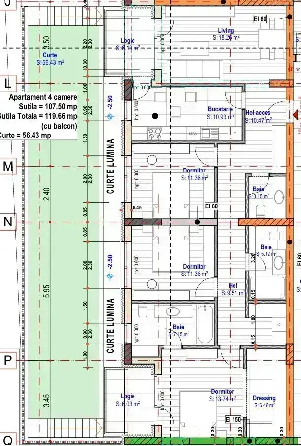
- 4 Rooms
- 108.0 m2
- Year Built:2026
- Comision 0%
Descriere
Randarile cu apartamentul sunt reale exact pe dimensiuni
Apartamente ideale cu 2 si 3 camere si 4 camere foarte spatioase intr-un complex nou cu doar 2 blocuri de 3 etaje.
In limita disponibilitatii, avem si apartamente cu GRADINA
Încălzire în pardoseală și centrală proprie – confort maxim, costuri minime!
Toate apartamentele dispun de bucatarii generoase de aproape 11mp cu o latime de 2.30mp
Acces in logie din bucatarie si din living
Zonă excelentă: Infrastructură modernă, acces rapid la facilități, transport, magazine, scoli, gradinite.
Lift pentru fiecare bloc, care urca din subteran. Parcari acoperite disponibile.
Compartimentare caramida, in interiorul apartamentul si intre apartamente (caramida 30cm)
Finisaje de calitate import Italia!
Poate cel mai important aspect, 15 minute reale pana la metrou 1 Decembrie 1918 pe jos ( mai exact gura de metrou de la Ozana), zona foarte linistita, (zona de blocuri si de case)
Comision 0% BIROU DEZVOLTATOR , consultanta imobiliara, sincera si complet gratuita.
Preturile difera in functie de avans avand anumite praguri, 20%/50%/80%
Termen de finalizare, octombrie 2026.
Contact: 0734172472 Victor


















