Prezentare generala
- Updated On:
- martie 4, 2026
- ID:97821
- 1 Rooms
- 40.0 m2
- Year Built:2025
- Comision 0%
Descriere
Garsonieră de vânzare – proiect nou, zonă estică, aproape de mijloacele de transport și centre comerciale
Vă propunem spre achiziție o garsonieră într-un proiect rezidențial nou, situat în zona de est a Capitalei, în proximitatea mai multor centre comerciale și cu acces facil către stația STB, aflată la doar câteva minute de mers pe jos.
Detalii apartament:
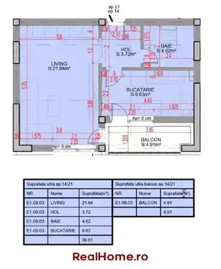
Suprafață utilă interioară: 39,81 mp
Balcon: 4,91 mp
Compartimentare eficientă
Disponibilitate: apartamente cu 1 cameră, 2 camere decomandate, tip studio, și 3 camere cu 2 băi
Preț în funcție de avans:
Avans 90%: 61.541 euro + TVA
Avans 50%: 63.593 euro + TVA
Termen de finalizare: Iunie 2026
Comision 0% – Vânzare directă de la dezvoltator
Consultanță gratuită pentru obținerea creditului prin broker dedicat
Caracteristici constructive și finisaje:
Încălzire în pardoseală
Finisaje la cheie, personalizabile
Băi complet echipate
Tâmplărie PVC de înaltă calitate
Lift hidraulic
Ușă metalică la intrare
Structură din beton armat
Posibilitate de achiziționare loc de parcare.
Fotografiile au caracter informativ și sunt preluate din proiecte anterioare cu design și finisaje similare.
Pentru detalii și programări la vizionare, vă rugăm să sunați la: 0731 324 661 sau realhome.ro









